|
Call us anytime 1300 823 796 |
|
Drop us a line [email protected] |
Lot 13 / 145 Polbar St, Eight Avenue, Austral
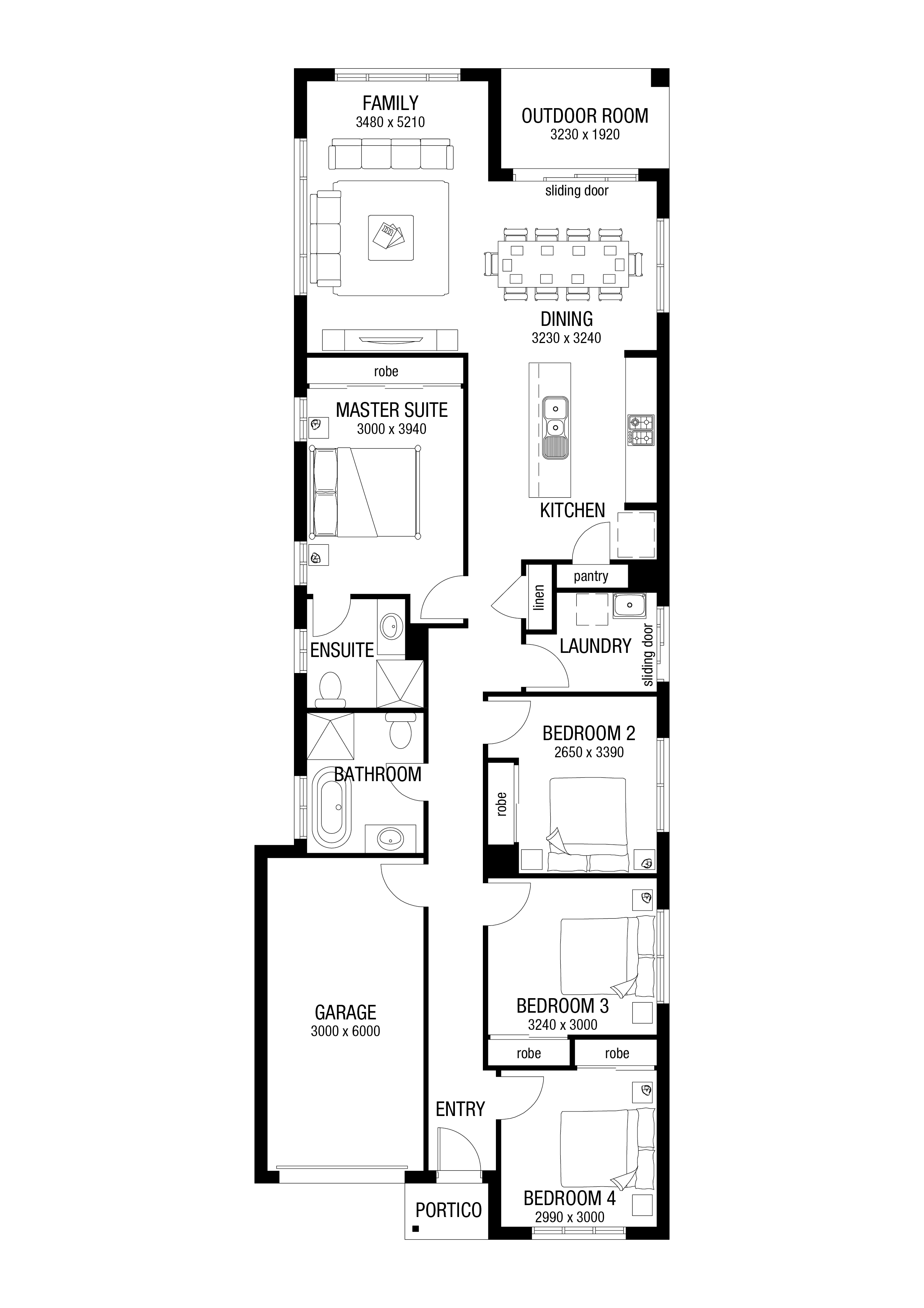
| 4 Beds | 2 Baths | Approx 300 Square metres | 1 car space |
Perfect Family Home or a great Investment Opportunity near the New Sydney International Airport.
Austral is now one of the most sought areas after due to its close proximity to Leppington Train Station, along with currently built major Infrastructure like New Western Sydney International Airport, Planned to open in 2026 and Commercial Precinct around the Train station, which are all part of the thriving South West Growth Area.
Location Highlights:
• Minutes walk to Austral Public School
• Minutes drive to Leppington Train Station, IGA and New Western Sydney International Airport, Planned to open in 2026
• Conveniently located within close proximity to Liverpool CBD, Uni of Western Sydney & Uni of Wollongong Liverpool campus and Liverpool Hospital
• Easy access to Trains, local quality schools, shopping center, medical facilities, future Airport and other amenities
This almost Turn Key House & Land Package will enjoy the convenience and lifestyle that this location offers:
• Modern kitchen with Caesarstone bench top, gas cook-top, and stainless steel appliances
• Large and bright Family and separate dining area
• Spacious bedrooms with build-in robes
• Master bedroom with an en-suite and walk in robe
• Two full modern bathrooms
• Massive and low maintenance back yard, perfect area for kids to play around or party alike
• Internal laundry and single garage with internal access
• All site costs included and almost Turn key, so nothing more to do just move in once completed
• A perfect opportunity for owner occupier or investors!
Build with:
• Australia's Leading Builder who has over 40 Years Industry Experience
• Comes with Lifetime Structural Guarantee and 6 Stage Quality Assurance Program
• The Most Trusted New Home Builder
Get your foot in the door in the booming South West, which is one of Sydney's major "Priority Growth Areas" and Reserve your new House & Land package before its too late!
Contact us for availability and pricing.
WE ALSO HAVE HOUSE AND LAND PACKAGES AVAILABLE IN SYDNEY NORTHWEST FROM $650K. CONTACT US FOR MORE INFO.
Disclaimer: Impressive Property Sales acts as the selling agent for the vendor/builder. Whilst we believe all information gathered is reliable and accurate we do not guarantee the accuracy of the information, nor do we accept liability should there be any delays or changes made by the developer or vendors. Artist impression used for illustrative purposes only and should not be relied upon when making purchasing decisions.. Actual home colours, materials and finishes may vary. Please refer to the Contract of Sale for further details.
| 4 beds | 2 baths | 1 car space |
| 4 beds | 3 baths | 1 car space |
| 4 beds | 2 baths | 2 car spaces |
Lot 22 / 15 Ninth Avenue, Austral
| 4 beds | 2 baths | 1 car space |
Riverstone
| 4 beds | 2 baths | 1 car space |
Riverstone
| 4 beds | 3 baths | 1 car space |


