|
Call us anytime 1300 823 796 |
|
Drop us a line [email protected] |
Box Hill
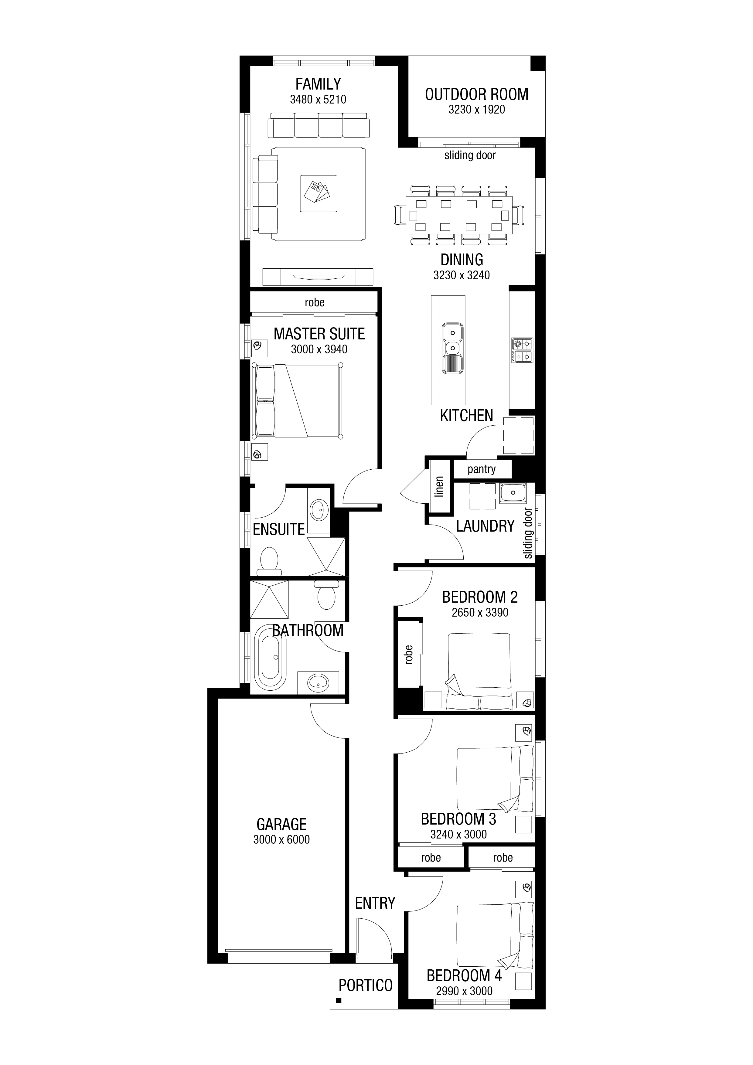
| 4 Beds | 2 Baths | Approx 303 Square metres | 1 car space |
Beautifully designed single storey home on good size 303 sqm Lot with great inclusions. Located in the heart of Box hill within The Hills District, it is only minutes drive to the New Rouse Hill Metro station.
THE LAND IS ALREADY REGISTERED, so there is no waiting time and construction can begin immediately. You could potentially move in by Christmas 2020!
Location Highlights:
• Minutes drive to Ironbark Ridge public School, Rouse Hill High School, and to Rouse Hill Public School
• Minutes drive to Rouse Hill Metro, Rouse Hill Shopping Centre, and proposed $300m Rouse Hill Public Hospital
• Conveniently located within close proximity to IKEA, Costco, Bunnings at Marsden Park, Norwest Business Park and Norwest Private Hospital
• Easy access to Trains, local quality schools, shopping center, medical facilities, business Parks and other amenities
• Minutes drive to proposed Future Schools, Box Hill City Center(Construction Started in April 2020)
This almost Turn Key House & Land Package will enjoy the convenience and lifestyle that this location offers:
• Modern kitchen with Caesarstone bench top, gas cook-top, and stainless steel appliances
• Large and bright Family and separate dining area
• Spacious bedrooms with build-in robes
• Master bedroom with an en-suite and walk in robe
• Two full modern bathrooms
• Massive and low maintenance back yard, perfect area for kids to play around or party alike
• Internal laundry and double garage with internal access
• All site costs included and almost Turn key
• A perfect opportunity for owner occupier or investors!
Build with:
• Australia's Leading Builder who has over 40 Years Industry Experience
• Comes with Lifetime Structural Guarantee and 6 Stage Quality Assurance Program
• The Most Trusted New Home Builder
Prices range from $690,000 - $963,000 depending on which land size and house option you choose!
Get your foot in the door in the booming North West, which is one of Sydney's major "Priority Growth Areas" and Reserve your new house & land package before its too late! Very few blocks remaining.
Contact us for availability and pricing.
WE ALSO HAVE OTHER HOUSE AND LAND PACKAGES AVAILABLE IN NORTHWEST FROM $650K. CONTACT US FOR MORE INFO.
Disclaimer: Impressive Property Sales acts as the selling agent for the vendor/builder. Whilst we believe all information gathered is reliable and accurate we do not guarantee the accuracy of the information, nor do we accept liability should there be any delays or changes made by the developer or vendors. Artist impression used for illustrative purposes only and should not be relied upon when making purchasing decisions.. Actual home colours, materials and finishes may vary. Please refer to the Contract of Sale for further details.
| 4 beds | 2 baths | 2 car spaces |
| 4 beds | 3 baths | 1 car space |
Lot 13 / 145 Polbar St, Eight Avenue, Austral
| 4 beds | 2 baths | 1 car space |
| 4 beds | 2 baths | 2 car spaces |
Lot 22 / 15 Ninth Avenue, Austral
| 4 beds | 2 baths | 1 car space |
Riverstone
| 4 beds | 2 baths | 1 car space |


